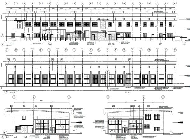
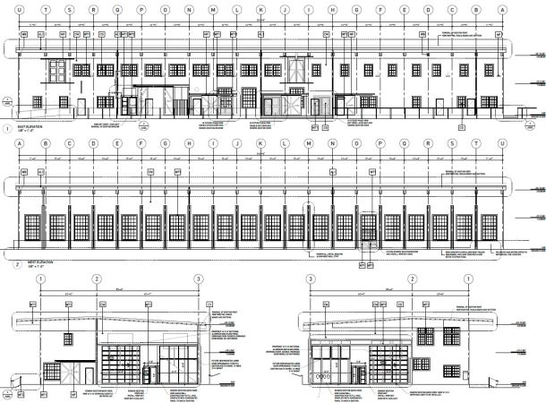
Project Overview
Currently under Renovation. We are currently working with the Town of Ladysmith to re-purpose the old machine shop into an Arts and Cultural Space. This will be one of the largest of its kind in the region offering indoor space to support local artists, arts and cultural organizations and indigenous artists, as well as an outdoor amphitheatre and accessible 200 ft. boardwalk.
Consultant
Herold Engineering | Hotson Architecture Inc.
Size
3,900 Sq. Ft.







